Bed icon  4  Bath icon  2

4 bed Bungalow - Detached For Sale
Meddins Lane, Kinver
£425,000 (Freehold)

Virtual Viewing
  • A detached dormer bungalow
  • Delightful setting just a short walk from National Trust owned Kinver Edge
  • Within easy reach of amenities within historic Kinver village
  • Offering a generous and versatile layout, with immense potential for improvement
  • Four potential bedrooms, master with an en-suite
  • Off-road parking for at least three cars
  • Attractive tiered rear garden
  • Available with No Upward Chain

The Accommodation:
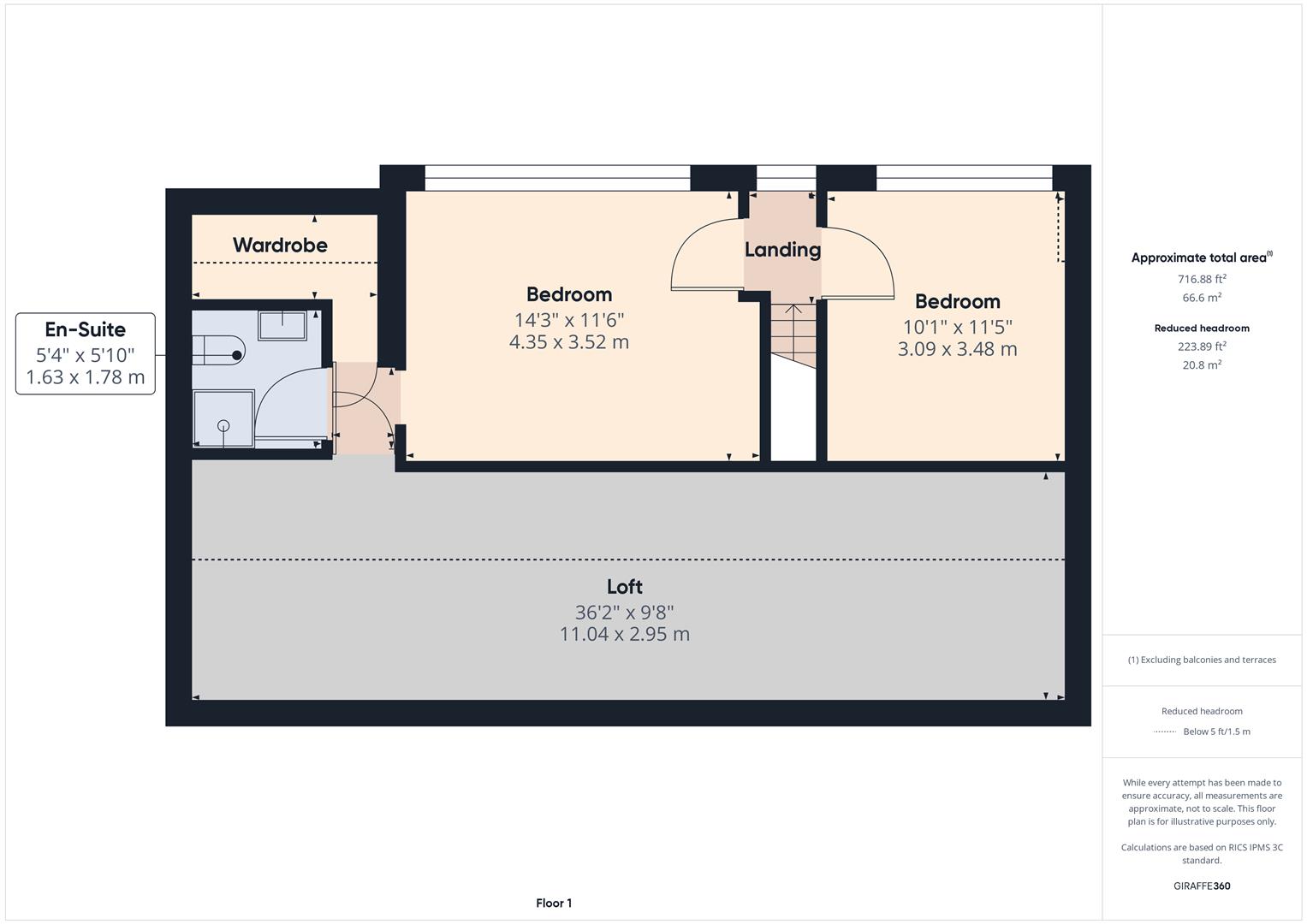
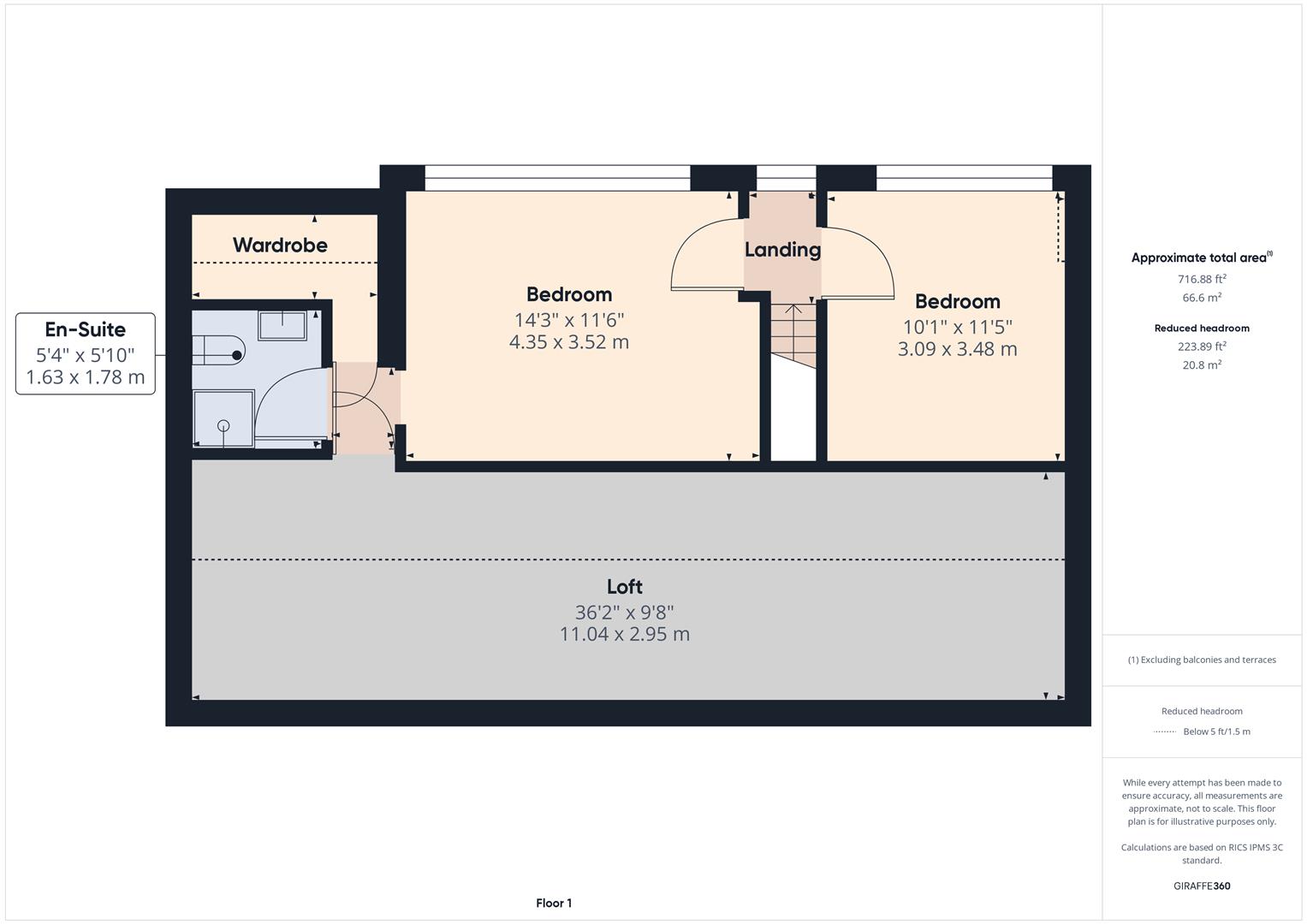
With gas central heating, uPVC double glazing and accommodation comprising: reception hallway with stairs to the first floor; generous lounge including a central feature chimney breast with a log burning stove; dining room/ bedroom three; study/ bedroom four; kitchen; utility room; conservatory extension with access into the rear garden; ground floor bathroom; first floor landing; large double master bedroom with an en-suite shower room, with a walk-in-wardrobe and useful loft storage space (housing the new Ideal Logic combination central heating boiler; and bedroom two.

Outside:
The bungalow is set back beyond a large frontage, including a lawn garden, a paved forecourt and a tarmac driveway, which provides off-road parking for at least three cars.

Gated side access is available to the rear garden, arranged over multiple tiers to include paved patios, a useful brick outbuilding, a cold water tap, lawns, an apple tree and attractive shrub areas.

Available for sale with No Upward Chain, the full potential of this detached dormer bungalow and its versatile layout and wonderful setting require a personal visit to be fully appreciated. Early appointments are recommended to avoid disappointment.

Location:
Kinver village is a popular destination for those wanting to enjoy a semi-rural location but with the convenience of local amenities. The village provides schooling for all age ranges as well as a good selection of independent shops, pubs, and eateries. Lying adjacent to the National Trust owned Kinver Edge, the village provides easy access to beautiful countryside whilst also being well placed for commuting to Birmingham, the Black Country and North Worcestershire. Being approximately 20 miles west of Birmingham, 13 miles south of Wolverhampton, and 20 miles north of Worcester, Kinver is served by a good motorway network with excellent links to the M5, M6, M40, and M42, Birmingham International Airport is approximately 45 minutes away and the mainline train station in Stourbridge has regular services to and from Worcester, Malvern, Birmingham and London.

Schooling:
The village is fortunate to benefit from infant and primary schooling as well as having a high school and sixth form.

Tenure:
Freehold

Services:
All mains services are connected

Local Authority:
South Staffordshire Council

Council Tax:
Band E

agent

For further details on this property please call us on:
01384 878000

Download PDF Arrange Viewing
Floorplans For Meddins Lane, Kinver Floorplans For Meddins Lane, Kinver
EPC For Meddins Lane, Kinver
X

X

Viewing Request