Bed icon  2  Bath icon  0

2 bed House - Terraced For Sale
Redcliff Close, Kinver
£130,000 (Leasehold)


To the front of the property is the hallway and the convenient downstairs WC. The hallway provides access to the kitchen/diner, this is a great space to relax with the family. To the rear of the home is the living area which benefits from patio doors opening out onto the garden, which is a perfect space for entertaining. The garden area comes turfed and fenced. Upstairs there are two good sized bedrooms and a family bathroom. The master bedroom also comes with an ensuite. This energy-efficient home has gas central heating, 2 off-road parking spaces and a car charging point.

The property benefits from a 10 year NHBC New build warranty.

This property is being offered for sale on the Shared Ownership Scheme, the property is marketed at a 40% share, with a full purchase price of £325,000. The shared ownership scheme enables purchasers to start with owning a share of between 10% and 75% of the property (depending on affordability) whilst paying a monthly rental and service charge on the remaining share. The monthly rental is charged at 2.75% and a full breakdown of the figures can be obtained from the agent.

PLEASE NOTE-
There is an 80% maximum restriction on future staircasing.

Please refer to the brochure section for further information and policies.

For more information, and how to apply, please contact the agent.

Location:
Kinver village is a popular destination for those wanting to enjoy a semi rural location but with the convenience of local amenities. The village provides schooling for all age ranges as well as a good selection of independent shops, pubs and eateries.

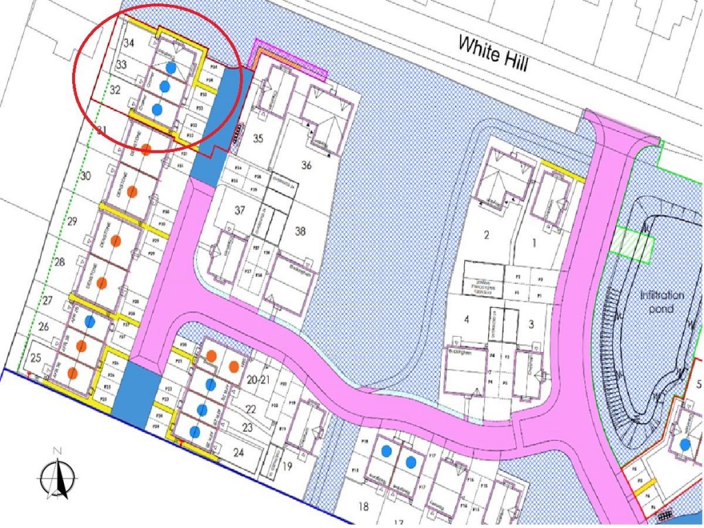
Tenure: Leasehold - 990 YEARS ONLY ON PLOTS, 32, 33 AND 34

Service charge: £35.69 PCM

Services: All mains services are connected Local Authority: South Staffordshire Council

ESTIMATED BUILD COMPLETION DATE - JULY 2025


Council Tax: Estimated band B-D
Some images (where used) are for illustration purposes only and may not show the exact property.

agent

For further details on this property please call us on:
01384 878000

Download PDF Arrange Viewing
EPC For Redcliff Close, Kinver
X

X

Viewing Request