Bed icon  3  Bath icon  1

3 bed House - Semi-Detached Sold Subject to Contract
Orchard Rise, Bewdley
£325,000 (Freehold)

Virtual Viewing
  • An extended and beautifully improved three bedroom semi-detached family house
  • Available with no upward chain
  • Two excellent sized reception rooms
  • Off-road parking
  • Garage
  • Landscaped low maintenance rear garden
  • Short walk from the centre of Bewdley
  • Pleasant cul-de-sac setting
  • Virtual Tour available

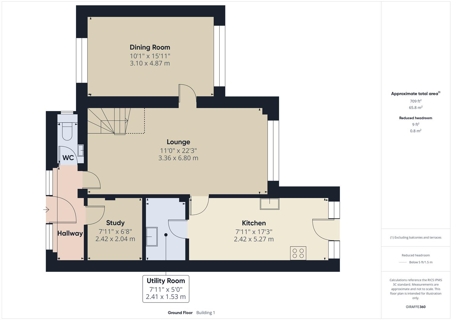
The Accommodation:
The double glazed composite front door opens to the reception hallway, with uPVC double glazed windows to the front elevation, luxury vinyl flooring and oak wood doors to the lounge, study and a ground floor WC.

The ground floor WC is well appointed with a white suite, including a push-button flush WC, wall mounted wash basin with a built-in vanity cupboard below, radiator, luxury vinyl flooring and a uPVC double glazed window to the side elevation.

The study is a versatile space including power points and fitted cupboards (housing the utility meters).

The lounge forms an excellent sized reception room, having a uPVC double glazed window to the rear elevation, two radiators, stairs to the first floor accommodation and oak wood doors to the dining room and kitchen.

The dining room is another good sized reception room, with uPVC double glazed windows to the front and rear elevations, two radiators and Karndean flooring.

The kitchen is beautifully appointed with a range of light grey shaker style units, incorporating a one and a half bowl sink/drainer unit with a mixer tap, integrated appliances including an AEG four ring gas hob with an AEG canopy cooker hood above, AEG electric oven with a grill and an AEG dishwasher, base cupboards/drawers, wall mounted cupboards, tiled floor, uPVC double glazed windows and door to the rear garden, and an oak wood door to a separate utility room.

The utility room provides a stainless-steel one and a half bowl sink/drainer unit with a mixer tap, plumbing for a washing machine, space for a tumble dryer, base and wall mounted cupboards, part tiling to the walls and luxury vinyl flooring.

The first floor comprises a landing with a uPVC double glazed window to the side elevation, loft access hatch (part boarded loft with a pull-down ladder), radiator and oak wood doors to bedrooms one, two, three and the bathroom.

Bedroom one forms a double room, including a uPVC double glazed window to the rear elevation (enjoying views towards St Anne's Church and nearby countryside) and a radiator.

Bedroom two is a double room with a uPVC double glazed window to the front elevation and a radiator.

Bedroom three is a good sized single room, having a uPVC double glazed window to the front elevation and a radiator.

The bathroom is attractively appointed with a white suite, including a bath, curved shower cubicle with a fitted mixer shower, pedestal wash basin, push-button flush WC, heated towel rail, full height tiling to the walls, tiled floor with underfloor heating and a uPVC double glazed window to the rear elevation.

Outside:
The property is set back beyond a shrub fore garden and block paved driveway, with off-road parking for one car and access to the garage. The frontage also includes a power point and a cold water tap.

The garage is entered via an up-and-over door and has lighting, power points and a door into the rear garden.

The garden has been landscaped and laid out for low maintenance to include paved/slated chipped patios, a raised and well stocked shrub border, cold water tap and a sheltered side storage area. The garden enjoys a pleasant open rear aspect, with views towards St Anne's Church.

Available with no upward chain, viewing is essential for this enlarged and much improved three bedroom semi-detached family house and its pleasant cul-de-sac setting to be fully appreciated. Early appointments are recommended to avoid disappointment.

Location:
Situated on the banks of the River Severn and the edge of the Wyre Forest, Bewdley has been described as “the most perfect small town in Worcestershire”. The town enjoys a good choice of pubs, cafes and restaurants, along with small independent shops, craft studios, a brewery, a local museum, a selection of sports clubs, and a number of churches. Being approximately 20 miles southwest of Birmingham and 15 miles north of Worcester, Bewdley is served by a good motorway network with excellent links to the M5, M6, M40, and M42. Birmingham International Airport is approximately 45 minutes away and the mainline train station in Kidderminster has regular services to and from Worcester, Malvern, Birmingham, and London.

Schooling:
The town is fortunate to benefit from two primary schools and a high school, all rated as Good by Ofsted in their most recent inspections. The independent sector is also well catered for locally with a fine selection of schools available nearby in Kidderminster, Chaddesley Corbett, Abberley, Bromsgrove, and Worcester.

Tenure:
Freehold

Services:
All mains services are connected

Local Authority:
Wyre Forest District Council

Council Tax:
Band C

agent

For further details on this property please call us on:
01299 402392

Download PDF Arrange Viewing
Floorplans For Orchard Rise, Bewdley Floorplans For Orchard Rise, Bewdley Floorplans For Orchard Rise, Bewdley
EPC For Orchard Rise, Bewdley
X

X

Viewing Request