Bed icon  3  Bath icon  1

3 bed House - Semi-Detached Sold Subject to Contract
Elton Road, Bewdley
£289,950 (Freehold)

Virtual Viewing
  • An extended and well presented three-bedroom semi-detached home
  • Located in a quiet and sought-after residential area in Bewdley
  • Bright and generous reception space
  • Kitchen diner with intergrated appliances
  • Rear garden and patio with its own pub!
  • Perfect spot for entertaining family and friends
  • Off-road parking
  • EV charging point
  • Virtual Tour available

Frontage:
The front garden is laid to lawn with block paved driveway to the side providing off-road parking with an installed EV charging point and access to the front door.

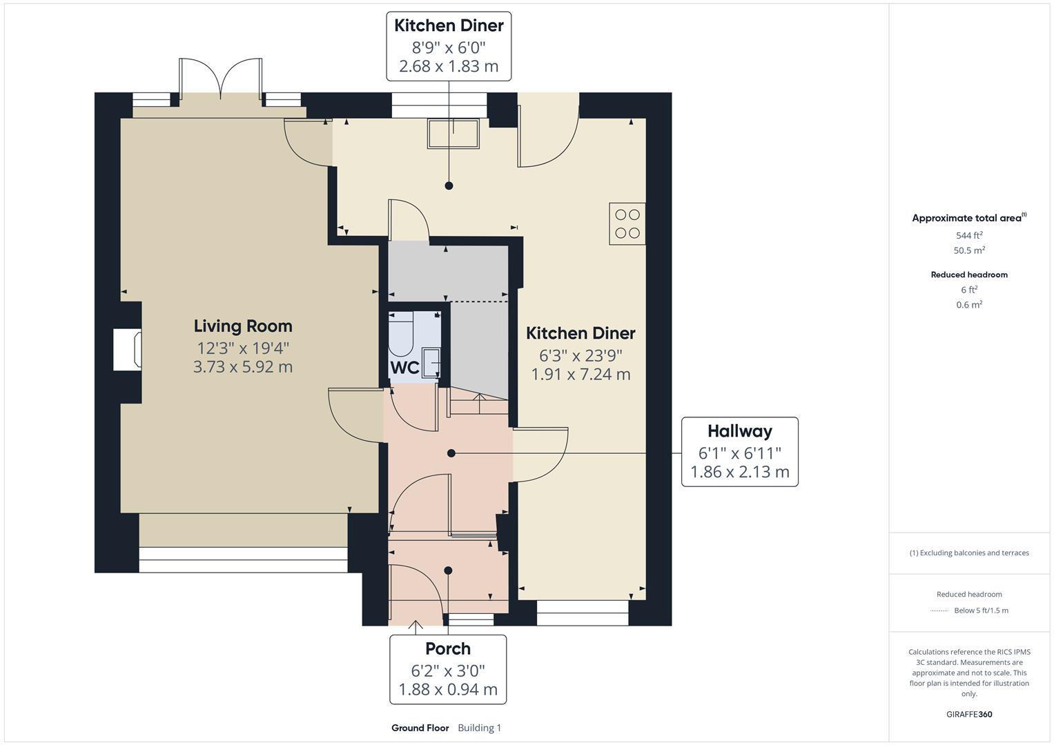
Ground Floor Accommodation:
The porch is fitted with uPVC double-glazed windows leading into the hallway through a secondary door.

The hallway is finished with tiling to the floor and provides access to the kitchen, living room, stairs to the first floor and a ground-floor WC.

The living room is a particularly spacious and versatile reception room easily arranged as either a living diner or extensive lounge. Ample natural light is provided from dual aspects via a large uPVC double-glazed bow window to the front elevation and double-glazed French doors opening to the rear patio. The room also offers a feature fireplace with inset gas fire, wood-effect laminate flooring, two radiators and a door connecting to the kitchen diner.

The kitchen diner forms an L-shaped room, with the dining space enjoying a front-facing double-glazed uPVC window and radiator. The kitchen area is appointed with a range of cream wall and base units, roll top wood-effect surfaces, complementary tiling to the walls, two double-glazed roof windows, a uPVC double-glazed rear-facing window and a radiator. It features integral appliances including a single drainer sink unit with mixer tap, five-ring gas hob with cooker hood, oven beneath, under-counter fridge, and dishwasher. There is a recess and plumbing for a washing machine, a storage cupboard housing the Worcester Bosch combi boiler, door to a useful understairs space, with part full height making it suitable for a cloakroom or potentially a pantry and a door to the rear garden/patio.
The ground floor WC is fitted with a white low flush WC and wash basin, tiled floor doubling as a useful cloakroom.

First Floor Accommodation:
The landing provides access to the bedrooms and bathroom, with an above access hatch to a boarded loft along with a double-glazed uPVC window to the side elevation and radiator on the stairwell.

Bedroom one forms a bright and generous double featuring a large front-facing double-glazed uPVC window, radiator, wood-effect laminate flooring and a recess ideal for a wardrobe

Bedroom Two forms another double with a large rear-facing double-glazed uPVC window, radiator and wood-effect laminate flooring.

Bedroom Three is best suited as a home office, nursery, or storage room, with a front-facing double-glazed uPVC window, radiator, wood-effect laminate flooring and its own useful storage recess.

The bathroom is fitted with a white suite, comprising a push-button WC, vanity-style wash basin with a mixer tap and a P-shaped bath with a mixer tap, shower screen, and overhead mixer shower attachment. Complementary tiling surrounds the bath area, with a rear-facing double-glazed uPVC window, heated towel radiator and a newly fitted vinyl floor.

The Outside:
The rear garden is pleasantly landscaped, beginning with a raised patio ideal for outdoor dining with an outdoor light and cold water tap, which overlooks the gravel bordered lawn below. Stepping stones lead to a summer house at the side of the garden, currently fitted out as its own pub!

Summer house:
The summer house is a standout feature, with wooden exterior and interior finishes, windows and French doors, offering a unique space currently appointed with a bar and seating area. This garden pub makes a fantastic entertainment space with charm and character, with its fixtures and fittings available by separate negotiation.

Location:
Situated on the banks of the River Severn and the edge of the Wyre Forest, Bewdley has been described as “the most perfect small town in Worcestershire”. The town enjoys a good choice of pubs, cafes and restaurants, along with small independent shops, craft studios, a brewery, a local museum, a selection of sports clubs, and a number of churches. Being approximately 20 miles southwest of Birmingham and 15 miles north of Worcester, Bewdley is served by a good motorway network with excellent links to the M5, M6, M40, and M42. Birmingham International Airport is approximately 45 minutes away and the mainline train station in Kidderminster has regular services to and from Worcester, Malvern, Birmingham, and London.

Schooling:
The town is fortunate to benefit from two primary schools and a high school, all rated as Good by Ofsted in their most recent inspections. The independent sector is also well catered for locally with a fine selection of schools available nearby in Kidderminster, Chaddesley Corbett, Abberley, Bromsgrove, and Worcester.

Tenure:
Freehold

Services:
All mains services are connected

Local Authority:
Wyre Forest District Council

Council Tax:
Band B

agent

For further details on this property please call us on:
01299 402392

Download PDF Arrange Viewing
Floorplans For Elton Road, Bewdley Floorplans For Elton Road, Bewdley Floorplans For Elton Road, Bewdley Floorplans For Elton Road, Bewdley
EPC For Elton Road, Bewdley
X

X

Viewing Request