Bed icon  0  Bath icon  0

Office To Let
Riverside North, Bewdley
(From) PCM £350pcm

  • PRICES FROM £350 + VAT PCM UPWARDS
  • Affordable furnished offices to let
  • Sizes ranging from approximately 37 sq ft to 248 sq ft
  • Large on-site carpark
  • Prominent riverside position in Bewdley town centre
  • Professional guest reception area
  • On-site support staff
  • 24/7 secure access
  • Includes high-speed internet and utilities
  • Communal Kitchens

The Building:
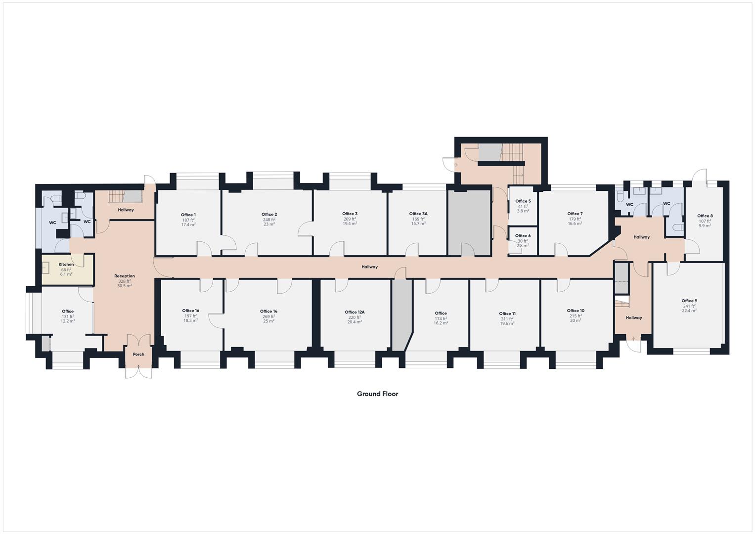
The building is primarily accessed via a welcoming reception, with a guest waiting area and staffed between 9.30am and 4pm during the week. The ground floor houses 14 offices, a communal kitchen, WC facilities and three stairwells.

The first floor offers a further 21 offices in total. The main section accommodates 16 offices alongside another kitchen, WC facilities, and enjoys elevated views over Bewdley and the River Severn. A separate first-floor extension, reached by its own stairwell, adds 5 more offices.

With its tranquil riverside setting, flexible lease terms, and modern facilities, Bridge House offers an excellent opportunity for local businesses to grow. Affordable private offices are available immediately, many recently refurbished, with sizes ranging from individual spaces of approximately 37 sq ft to larger offices of up to 248 sq ft. Early viewing is strongly recommended to avoid disappointment.

* PLEASE NOT THAT ALL PRICES ARE PLUS VAT *

Location:
Situated on the banks of the River Severn and the edge of the Wyre Forest, Bewdley has been described as “the most perfect small town in Worcestershire”. The town enjoys a good choice of pubs, cafes and restaurants, along with small independent shops, craft studios, a brewery, a local museum, a selection of sports clubs, and a number of churches. Being approximately 20 miles southwest of Birmingham and 15 miles north of Worcester, Bewdley is served by a good motorway network with excellent links to the M5, M6, M40, and M42. Birmingham International Airport is approximately 45 minutes away and the mainline train station in Kidderminster has regular services to and from Worcester, Malvern, Birmingham, and London.

agent

For further details on this property please call us on:
01384 443434

Download PDF Arrange Viewing
Floorplans For Riverside North, Bewdley Floorplans For Riverside North, Bewdley Floorplans For Riverside North, Bewdley Floorplans For Riverside North, Bewdley Floorplans For Riverside North, Bewdley
X

X

Viewing Request