Bed icon  4  Bath icon  2

4 bed House - Semi-Detached For Sale
Dunsley Drive, Kinver, Stourbridge
£639,950 (Freehold)

Virtual Viewing
  • An impressive and spacious four bedroom semi-detached family home
  • Delightful front aspect with countryside views over neighbouring fields
  • Recent extension to the rear
  • Superb large open plan living space
  • Modern interiors and high-quality finishes throughout
  • Accommodation arranged over three floors
  • Principal bedroom with an en-suite shower room
  • Beautifully landscaped rear garden
  • Generous private driveway
  • Virtual tour available

Accommodation:

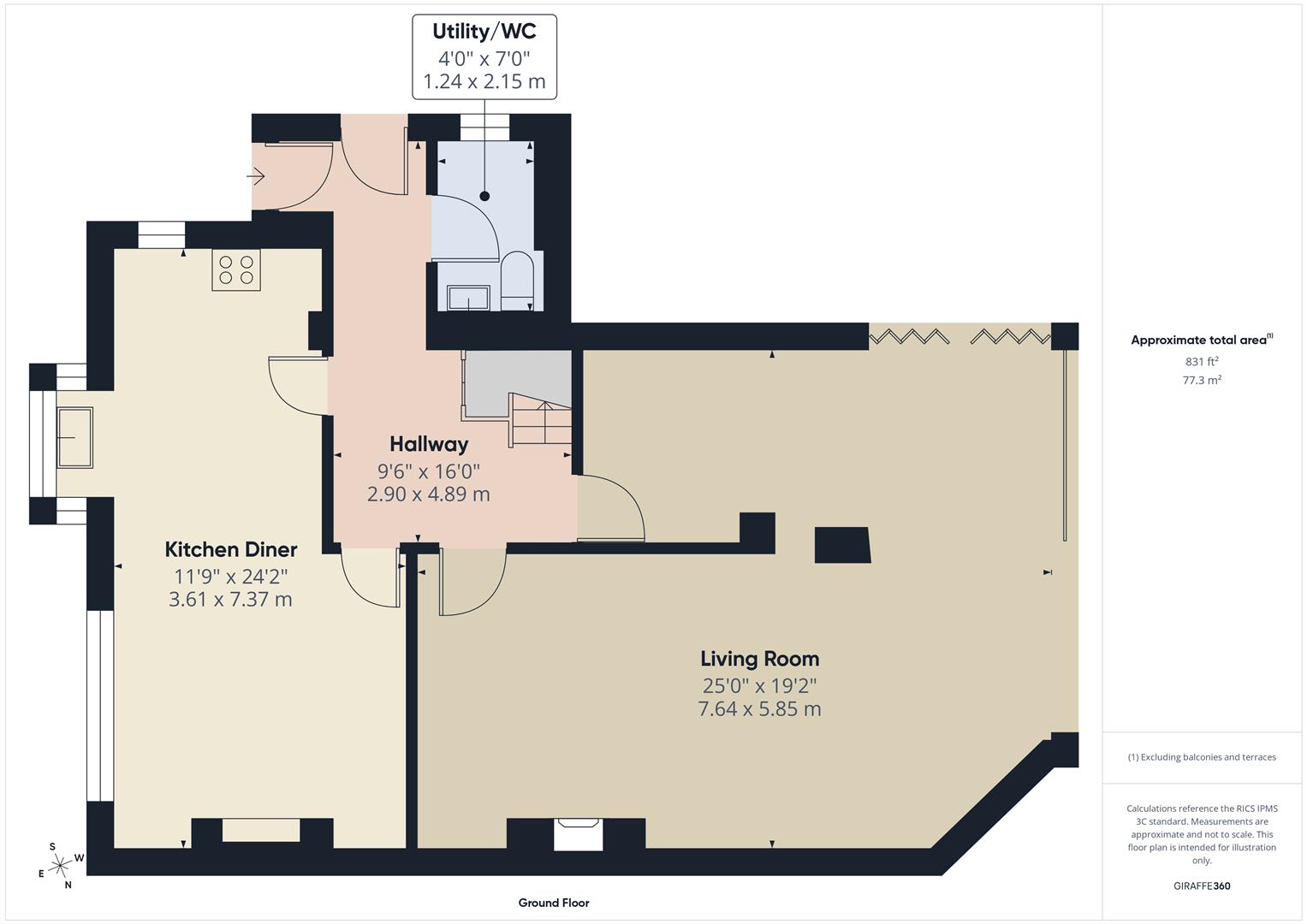
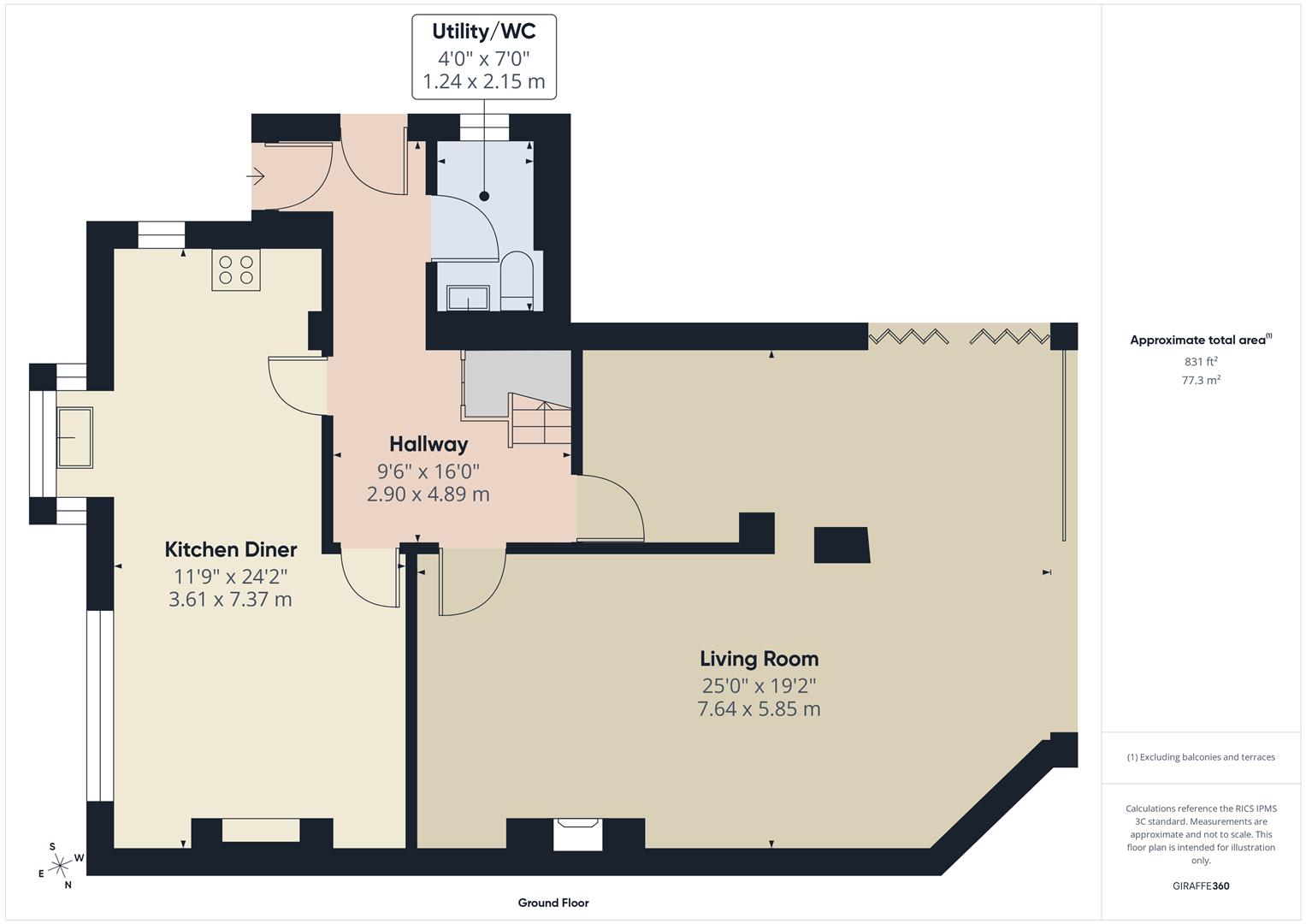
Hallway:
A welcoming hallway with doors to the kitchen/dining room, living room and WC/utility, stairs rising to the first floor, a radiator, understairs cupboard and a double-glazed door providing direct access to the side of the property.

Kitchen/Dining Room:
A large dual-aspect space split into two distinct areas. The dining area enjoys a double-glazed window to the front and a radiator. The kitchen area is fitted with cream wall and base units with complementary worksurfaces incorporating a one and a half bowl sink with a mixer tap. Integrated appliances include a: microwave; double oven; four ring induction hob; and a dishwasher. Further features consist of a box bay double-glazed window to the front elevation, a double-glazed window to the side elevation and space for an American-style fridge freezer.

Living Room:
The extended living room creates a bright open plan family space featuring double-glazed sliding doors to a Juliet balcony overlooking the garden, a large flat rooflight and double-glazed folding doors opening to steps down to the patio. Forming a U-shape, the space is split into two distinct living areas providing ample space for both seating and entertaining, one side with a feature fireplace housing a log burner. There is also three radiators.

Ground Floor WC/Utility Room:
Including a double-glazed window to the side, plumbing and recess for laundry appliances, a worksurface and incorporating a modern white suite comprising an enclosed flush WC and wash basin with mixer tap.

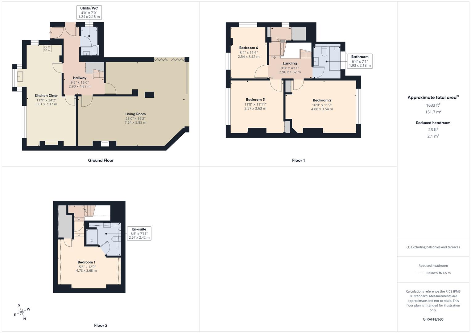
First Floor Landing:
Providing access to bedrooms two, three and four, the family bathroom and with stairs rising to the principal bedroom. There are storage cupboards, including one housing the hot water tank.

Bedroom Two:
A great-sized double room with a large, double-glazed window to the rear elevation, a radiator and fitted wardrobes providing ample storage space.

Bedroom Three:
A further double room with a double-glazed window to the front, a radiator and a door to a wardrobe/store.

Bedroom Four:
A dual aspect room, featuring double-glazed windows to the side and front elevations, a radiator and fitted wardrobes, drawers and cupboards.

Bathroom:
Appointed with a modern white suite comprising: a freestanding bath with mixer tap and handheld shower attachment; enclosed flush WC; and vanity unit with wash basin and mixer tap. There is tiling to the walls and floor, a towel radiator and a double-glazed window to the rear elevation.

Bedroom One:
The principal bedroom occupies the top floor and is a spacious double room with two double-glazed roof windows, a radiator, built in eaves storage and a door to a wardrobe/store. There is a further roof window over the staircase, and a door leads to the ensuite shower room.

En-suite Shower Room:
Fitted with a stylish white suite comprising a walk-in shower cubicle with a rainfall-style shower head and normal shower attachment, a push button flush WC and a wash basin with a mixer tap. There is a double-glazed roof window, a towel radiator, tiled flooring and complementary tiled walls.

Outside:
The property is set back beyond a large tarmac driveway, providing parking for numerous vehicles, and a patio leading to the front door. The front enjoys delightful open views over neighbouring fields, enhancing the semi-rural feel.

With gated side access from the front, the recently landscaped rear garden features a modern patio seating area equipped with outdoor lighting and power points, a lawn, shrub areas, a cold water tap and an additional patio at the far end, which is also equipped with power points.


Viewing is essential for this spacious and beautifully presented four-bedroom family house and its modern renovations, superb layout and delightful semi-rural setting to be fully appreciated. Early appointments are recommended to avoid disappointment.


Location:
Kinver village is a popular destination for those wanting to enjoy a semi-rural location but with the convenience of local amenities. The village provides schooling for all age ranges as well as a good selection of independent shops, pubs, and eateries. Lying adjacent to the National Trust owned Kinver Edge, the village provides easy access to beautiful countryside whilst also being well placed for commuting to Birmingham, the Black Country and North Worcestershire. Being approximately 20 miles west of Birmingham, 13 miles south of Wolverhampton, and 20 miles north of Worcester, Kinver is served by a good motorway network with excellent links to the M5, M6, M40, and M42, Birmingham International Airport is approximately 45 minutes away and the mainline train station in Stourbridge has regular services to and from Worcester, Malvern, Birmingham and London.

Schooling:
The village is fortunate to benefit from infant and primary schooling as well as having a high school and sixth form.

Tenure:
Freehold

Services:
All mains services are connected

Local Authority:
South Staffordshire Council

Council Tax:
Band E

agent

For further details on this property please call us on:
01384 878000

Download PDF Arrange Viewing
Floorplans For Dunsley Drive, Kinver, Stourbridge Floorplans For Dunsley Drive, Kinver, Stourbridge Floorplans For Dunsley Drive, Kinver, Stourbridge Floorplans For Dunsley Drive, Kinver, Stourbridge
EPC For Dunsley Drive, Kinver, Stourbridge
X

X

Viewing Request