Bed icon  4  Bath icon  2

4 bed House - Detached For Sale
Hampton Grove, Kinver, Stourbridge
£895,000 (Freehold)

Virtual Viewing
  • A large expensively improved four bedroom detached family house
  • Prestigious cul-de-sac address in historic Kinver village
  • Countryside views and backing directly onto the Staffordshire & Worcestershire Canal
  • Impressively spacious and beautifully appointed layout that is “ready to move into”
  • Large lounge and a luxurious kitchen/family room
  • Four double bedrooms, master with an en-suite shower room
  • Versatile lower ground floor games room/gymnasium/home office
  • Off-road parking for eight cars + a double garage
  • Large attractively laid out rear garden, including a jetty onto the canal
  • Virtual Tour available

The Accommodation:
The uPVC double glazed front door opens into an entrance porch, with uPVC double glazed windows to the front elevation, tiled floor and a glazed solid oak door with side panel windows to the reception hallway.

The reception hallway includes a bespoke solid oak staircase to the first floor accommodation with glass balustrades, stairs to the lower ground floor (with built-in store cupboards and a door to the games room), a column style radiator, built-in cloaks/store cupboard and doors to the lounge/dining room, kitchen/family room and a ground floor WC.

The ground floor WC is well appointed with a white suite including a push-button flush WC, wash basin with built-in vanity cupboard below, heated towel rail, full height tiling to the walls and a tiled floor.

The lounge/dining room forms a large reception room arranged into two distinct areas. The lounge area includes a Stovax log burning stove with a stone mantel surround and protruding granite hearth, two column style radiators and bi-folding double glazed doors opening to the rear conservatory extension.

The dining/study area provides a versatile space, including a uPVC double glazed window to the front elevation and a column style radiator.

The conservatory is a lovely addition to the property, forming a spacious area with a column style radiator, tiled floor, uPVC double glazed windows and two sliding doors enjoying views of and access to the rear garden, together with uPVC double glazed doors to the kitchen/family room.

The kitchen/family room is luxuriously appointed with a range of off-white/wood style units with quartz worksurfaces, incorporating a large granite island unit with breakfast bar and useful drawer storage space. There is a stainless-steel one and a half bowl sink/drainer unit with flexible mixer tap and separate filtered tap, integrated appliances including a Bosch electric induction hob with a Miele cooker hood above, Bosch electric oven with grill, Bosch microwave oven with warming drawer below, and a Beko dishwasher. Further features include a recess for an American style fridge freezer, four pull-out larder cupboards, base cupboards and drawers, wall mounted cupboards and shelving with space for a television, two column style radiators, tiled floor, uPVC double glazed window to the rear elevation and a uPVC double glazed door to a separate utility room.

The utility room is fitted with off-white units with polished cement worksurfaces, incorporating a sink/drainer unit with mixer tap, plumbing for a washing machine and space for a tumble dryer. Additional features include base and wall mounted cupboards, further fitted storage cupboards, radiator, tiled floor, uPVC double glazed windows to the side elevation, uPVC double glazed door to the rear garden and an internal door to the double garage.

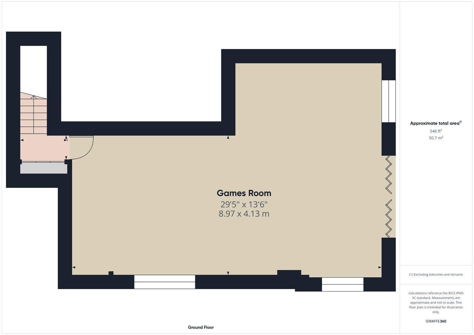
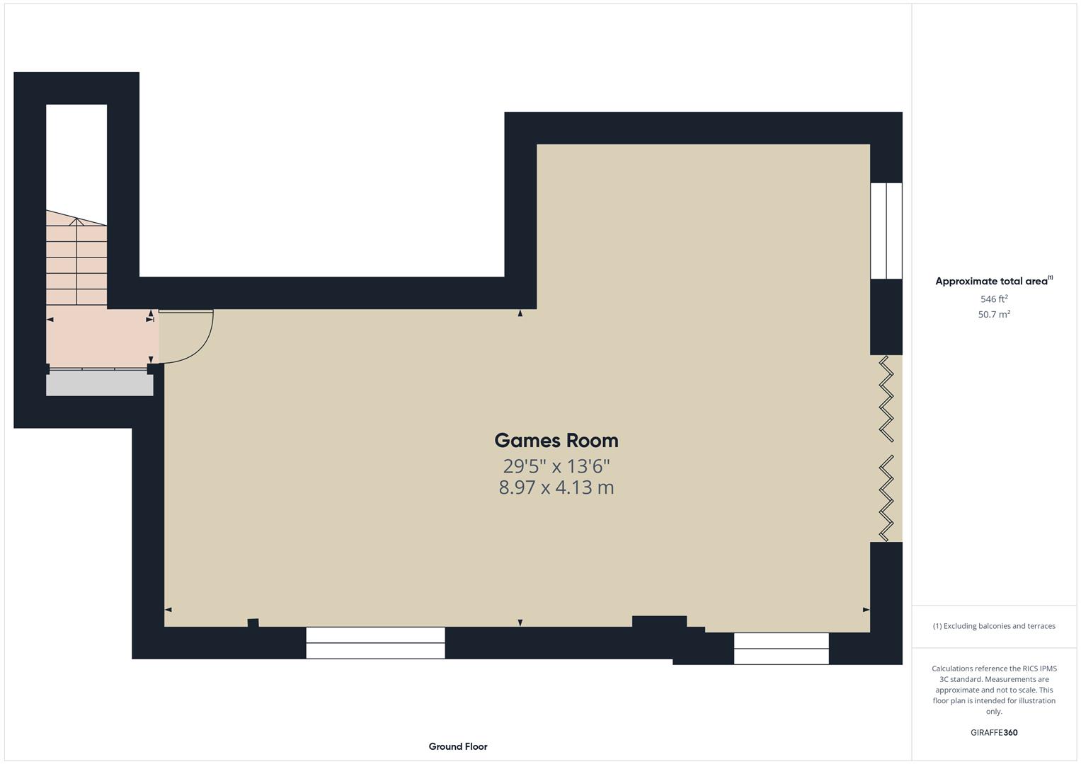
The lower ground floor provides a large and highly versatile space which could be used as a games room, gymnasium or potentially converted to create a self-contained annex or home office. The room includes uPVC double glazed windows to the side and rear elevations, three radiators, bi-folding doors to the rear garden, a fitted bar with two beer pumps, and a kitchen area incorporating a stainless-steel sink/drainer unit and wall mounted cupboards.

The first floor comprises a landing with a uPVC double glazed window to the front elevation, glass balustrades, loft access hatch (boarded loft with pull-down ladder), airing cupboard (housing the hot water cylinder and shelving) and doors to bedrooms one, two, three and four and the family bathroom.

Bedroom one forms an excellent sized master bedroom, including a uPVC double glazed window to the rear elevation enjoying delightful views towards the canal and countryside beyond, radiator, fitted oak furniture including wardrobes, bedside tables, chest of drawers and dressing table, and a door to the en-suite shower room.

The en-suite is attractively appointed with a white suite including a wet room style shower area with glass screen and fitted mixer shower with large rainfall style shower head, large wash basin with built-in vanity drawers below, push-button flush WC, heated towel rail, electric shaver/toothbrush point, part tiling to the walls, tiled floor and a uPVC double glazed window to the rear elevation.

Bedroom two is another excellent double room with a uPVC double glazed window to the rear elevation, radiator and fitted wardrobes, drawers and dressing table.

Bedroom three is a double room with a uPVC double glazed window to the front elevation, fitted wardrobe and radiator.

Bedroom four forms a double room with a uPVC double glazed window to the front elevation and a radiator.

The family bathroom is beautifully appointed with a white suite including a bath, wash basin with built-in vanity drawers below, shower cubicle with fitted mixer shower (with large rainfall style shower head and separate spray), push-button flush WC, heated towel rail, wall mounted mirror with built-in lighting, part tiling to the walls, tiled floor and a uPVC double glazed window to the rear elevation.

Outside:
The property occupies an approximate 0.5 acre plot and is set back beyond a large frontage including a front garden with lawn and shrub borders. The frontage also includes a double power point and a block paved driveway providing off-road parking for up to eight cars and access to the double garage.

The garage is entered via a remote-controlled up-and-over door and includes uPVC double glazed windows to the side elevations, lighting, power points, workshop area, loft access hatch and a door to the utility room.

Side access is available on both sides of the property to the fantastic sized rear garden, which is attractively arranged over multiple tiers. The garden comprises a tiled terrace with steps leading down to a large paved patio (with lighting and a double power point) and a timber decked seating area. The garden also includes a play lawn, greenhouse, timber shed, well stocked shrub areas, a large sloping lawn with established trees, and a gate providing steps down to a jetty onto the Staffordshire and Worcestershire Canal (with mooring rights). The garden enjoys a wonderful outlook across the canal towards the River Stour and meadows beyond.

Viewing is essential for this beautifully improved family house and its wonderful setting with canal side backdrop to be fully appreciated. Early appointments are highly recommended to avoid disappointment.

Location:
Kinver village is a highly sought-after destination for those seeking a semi-rural lifestyle with the convenience of local amenities. The village offers schooling for all age ranges, together with a good selection of independent shops, public houses and eateries.

Situated adjacent to the National Trust owned Kinver Edge, the village provides access to beautiful countryside, whilst remaining well placed for commuting to Birmingham, the Black Country and North Worcestershire.

Approximately 20 miles west of Birmingham, 13 miles south of Wolverhampton and 20 miles north of Worcester, Kinver benefits from an excellent motorway network with links to the M5, M6, M40 and M42. Birmingham International Airport is approximately 45 minutes away, and the mainline train station at Stourbridge provides regular services to Worcester, Malvern, Birmingham and London.

Schooling:
The village benefits from infant and primary schooling, together with a high school and sixth form provision.

Tenure:
Freehold

Services:
All mains services are connected

Local Authority:
South Staffordshire Council

Council Tax:
Band G

agent

For further details on this property please call us on:
01384 878000

Download PDF Arrange Viewing
Floorplans For Hampton Grove, Kinver, Stourbridge Floorplans For Hampton Grove, Kinver, Stourbridge Floorplans For Hampton Grove, Kinver, Stourbridge Floorplans For Hampton Grove, Kinver, Stourbridge
X

X

Viewing Request