Bed icon  3  Bath icon  1

3 bed Barn Conversion For Sale
Stottesdon
£350,000 (Freehold)

Virtual Viewing
  • A delightful three bedroom barn conversion at the heart of this charming countryside village
  • Well-presented and versatile accommodation throughout
  • Characterful living room with a log burner
  • Open plan kitchen diner
  • Modern bathroom + separate WC
  • Useful converted loft store room with roof window
  • Attractive gardens enclosed to both the front and rear
  • The village has Ultra Fast Full Fibre Broadband
  • Shared driveway with two allocated parking spaces + EV charger
  • Virtual tour available

Approach:
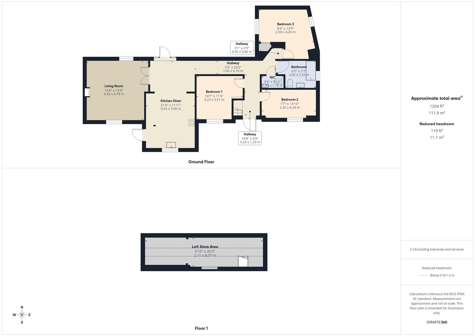
The property is approached from the front courtyard and entered via a double glazed door either into the kitchen diner or the hallway.

Kitchen Diner:
Well-appointed with a range of cream base and wall units with complementary worksurfaces and splashback and incorporating a ceramic sink and drainer unit with mixer tap. There is space for a five ring Range-style cooker and an American-style fridge freezer. The room benefits from a double-glazed window to the front, radiator to the dining area, and double glazed doors providing access to the rear garden, as well as double doors opening into the living room and open access to the hallway.

Living Room:
A dual aspect room with double glazed windows to both the front and rear and a multi-fuel burner.

Hallway:
With a double glazed roof window, radiator, double glazed door to the front garden and doors to all three bedrooms, the bathroom, separate WC, and with open access to a ladder staircase rising to the useful loft storage area.

Bedroom One:
Benefiting from a double glazed window to front and a radiator.

Bedroom Two:
With a double glazed window to front and a radiator.

Bedroom Three:
An L-shaped room with fitted wardrobes, two double glazed windows to the sides providing a dual aspect and a radiator.

Bathroom:
Fitted with a white suite comprising a corner bath with twin taps and an electric shower over, a low flush WC and a pedestal wash hand basin with twin taps. Further benefits include a radiator, and a double glazed window to the front aspect.

WC:
Fitted with a low flush WC and a wall mounted wash hand basin.

Loft Storage Area:
With a double glazed roof window to the front, providing a useful and versatile space with a convenient open stair ladder.

Outside:
The property is approached via a large shared gravel driveway, providing two allocated parking spaces and serving just two other properties. There is the added benefit of an EV charger, along with external lighting and power.

To the front, there is picket fencing enclosing the fore garden which includes a patio seating area, raised vegetable beds, lawned areas and access to both the kitchen and hallway entrances.

To the rear, the property enjoys a beautifully landscaped garden, again enclosed with picket fencing and comprising a shaped lawn, mature planting, and patio seating spaces, ideal for outdoor dining and entertaining. There is also a cold water tap and gated access leading to the lane behind.

Location:
Stottesdon is a delightful, small village in south-east Shropshire, set within attractive open countryside with access to a network of rural walks and bridleways. The village provides a range of local amenities including a Church, doctor’s surgery, primary school - rated ‘Good’ with ‘Outstanding’ personal development (Ofsted 2025), and a village public house, The Fighting Cocks, which is due to reopen.

Secondary schooling is available in nearby Cleobury Mortimer, as well as in Bewdley and Bridgnorth.

Approximate distances to local towns:
Bewdley - 9 miles; Kidderminster - 13 miles; Bridgnorth - 9 miles; Ludlow - 14 miles; Much Wenlock - 16 miles; Telford - 22 miles; Shrewsbury - 31 miles; Birmingham – 40 miles.

Tenure:
Freehold

Services:
Mains electricity, water and drainage. Oil fired central heating.

Local Authority:
Shropshire

Council Tax:
Band D

agent

For further details on this property please call us on:
01299 402392

Download PDF Arrange Viewing
Floorplans For Stottesdon Floorplans For Stottesdon Floorplans For Stottesdon
EPC For Stottesdon
X

X

Viewing Request